630 NW 7th Place            $509,000
        
    
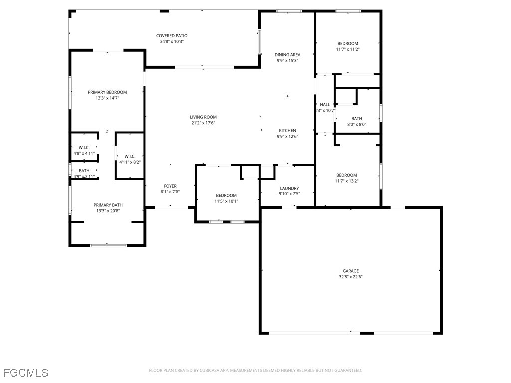
            Welcome to your dream home in the heart of NW Cape Coral! This stunning newer construction, built in 2023, features 4 spacious bedrooms and 2 luxurious bathrooms, offering an impressive 2,000 square feet of elegantly designed living space. Set on an OVERSIZED TRIPLE LOT, you’ll enjoy plenty of room for outdoor fun, gardening, or simply soaking up the sun. As you enter, you’ll be greeted by a bright, open-concept layout with beautiful tile flooring throughout, adding a sleek vibe that makes maintenance a breeze. The remarkable tray ceilings create an airy atmosphere, enhancing the spacious feel. The heart of this home is the gorgeous kitchen with eye-catching granite countertops. Cooking or entertaining will be a delight! The living area is perfect for relaxation and filled with natural light, while each bedroom provides a cozy retreat to unwind. Step outside to enjoy the expansive outdoor space. Imagine creating a lush garden, setting up a gathering spot, or just relaxing under the sun. Plus, with a 3-car garage, you’ll have plenty of room for your vehicles and storage. Located in a desirable area with city utilities already in place, this home is NOT IN A FLOOD ZONE, offering peace of mind and comfort. Discover the charm of NW Cape Coral, where modern living meets a friendly community atmosphere. Don’t miss this incredible opportunity! Schedule your visit today and see all that this fantastic home has to offer!
                                
                                    
                                        
                                            
                                        
                                        
                                            
                                        
                                    
                                
                                
                                    
                                        
                                            
                                        
                                        
                                            
                                        
                                    
                                
                                
                                    
                                        
                                            
                                        
                                        
                                            
                                        
                                    
                                
                                
                                    
                                        
                                            
                                        
                                        
                                            
                                        
                                    
                                
                                
                                    
                                        
                                            
                                        
                                        
                                            
                                        
                                    
                                
                                
                                    
                                        
                                            
                                        
                                        
                                            
                                        
                                    
                                        
                    Generelle Ausstattung
Sonderausstattung
Aussenausstattung
Landscape Amenities
Community Amenities
Appliance Amenities
- Zimmer
- 4
- Bäder
- 2.00
- Ft2
- 2,003
- Grundstücksgröße ha
- 0.34
- Baujahr
- 2023
- Heizung
- Central,Electric
- Dachausführung
- Shingle
 Virtueller Rundgang
630 NW 7th Place
Cape Coral, Florida 33993
United States
Cape Coral, Florida 33993
United States
Subdivision: CAPE CORAL
Landkreis: Lee
Kauf/Miete: For Sale
Objekt-ID: 2025017372
Aktualisiert: Mittwoch, 29. Oktober 2025 01:11
Kategorie: Single Family
Eingetragen von Re/Max Sunshine am Mittwoch, 29. Oktober 2025 [For Sale]
            - Zimmer
- 4
- Bäder
- 2.00
- Ft2
- 2,003
- Grundstücksgröße ha
- 0.34
- Heizung
- Central,Electric
- Klimaanlage
- CentralAir,CeilingFans,Electric
- Dachausführung
- Shingle
- Baujahr
- 2023
- Garagengröße
- 3
- Zimmer
- 4
- Bäder
- 2.00
- Ft2
- 2,003
- Grundstücksgröße ha
- 0.34
- Baujahr
- 2023
- Heizung
- Central,Electric
- Dachausführung
- Shingle
 Virtueller Rundgang
630 NW 7th Place
Cape Coral, Florida 33993
United States
Cape Coral, Florida 33993
United States
Subdivision: CAPE CORAL
Landkreis: Lee
Kauf/Miete: For Sale
Objekt-ID: 2025017372
Aktualisiert: Mittwoch, 29. Oktober 2025 01:11
Kategorie: Single Family
Eingetragen von Re/Max Sunshine am Mittwoch, 29. Oktober 2025 [For Sale]
             
                     
                             
                             
                             
                             
                             
                             
                             
                             
                             
                             
                             
                             
                             
                             
                             
                             
                             
                             
                             
                             
                             
                             
                             
                             
                             
                             
                             
                             
                             
                             
                             
                             
                             
                             
                             
                             
                            